Ostrava-Poruba · Kancelářské prostory
Tři samostatné objekty, jedna prémiová adresa. Pronajměte si vše najednou nebo jen to, co potřebujete.
O komplexu
LT CUBE 2 je moderní kancelářský komplex strategicky umístěný v Ostravě-Porubě — lokalitě s výbornou infrastrukturou, dopravní dostupností a zázemím pro firemní aktivity.
Komplex tvoří tři samostatné objekty A, B a C, které lze pronajmout jako celek pro jednoho nájemce, nebo individuálně. Součástí areálu je restaurace Plzeňka Aura, 60 parkovacích míst, optický internet Vodafone 2 Gb a komplexní zabezpečení.
Pronájem prostor
Vyberte variantu podle svých potřeb — od jednoho objektu až po celý kampus.

446,3 m²

613,2 m²

505,2 m²
Ideální pro velké firmy, které potřebují zastřešit více oddělení pod jednou střechou. Všechny tři objekty tvoří kompaktní areál se sdílenou infrastrukturou — parkoviště, internet, zabezpečení, restaurace.




Dominantní část komplexu s moderně řešenými prostory. Flexibilní dispozice vhodná pro open-space i členěné kanceláře. Světlé, vzdušné a reprezentativní prostory.




Kancelářské plochy s výborným funkčním layoutem a kvalitním technickým zázemím. Vhodná pro firmy hledající kompaktní, přehledný prostor.




Třetí článek komplexu s srovnatelně kvalitními kancelářskými prostory. Světlé dispozice s výhledem do areálu. Možnost úpravy dispozice dle potřeb nájemce.
Fotogalerie


























































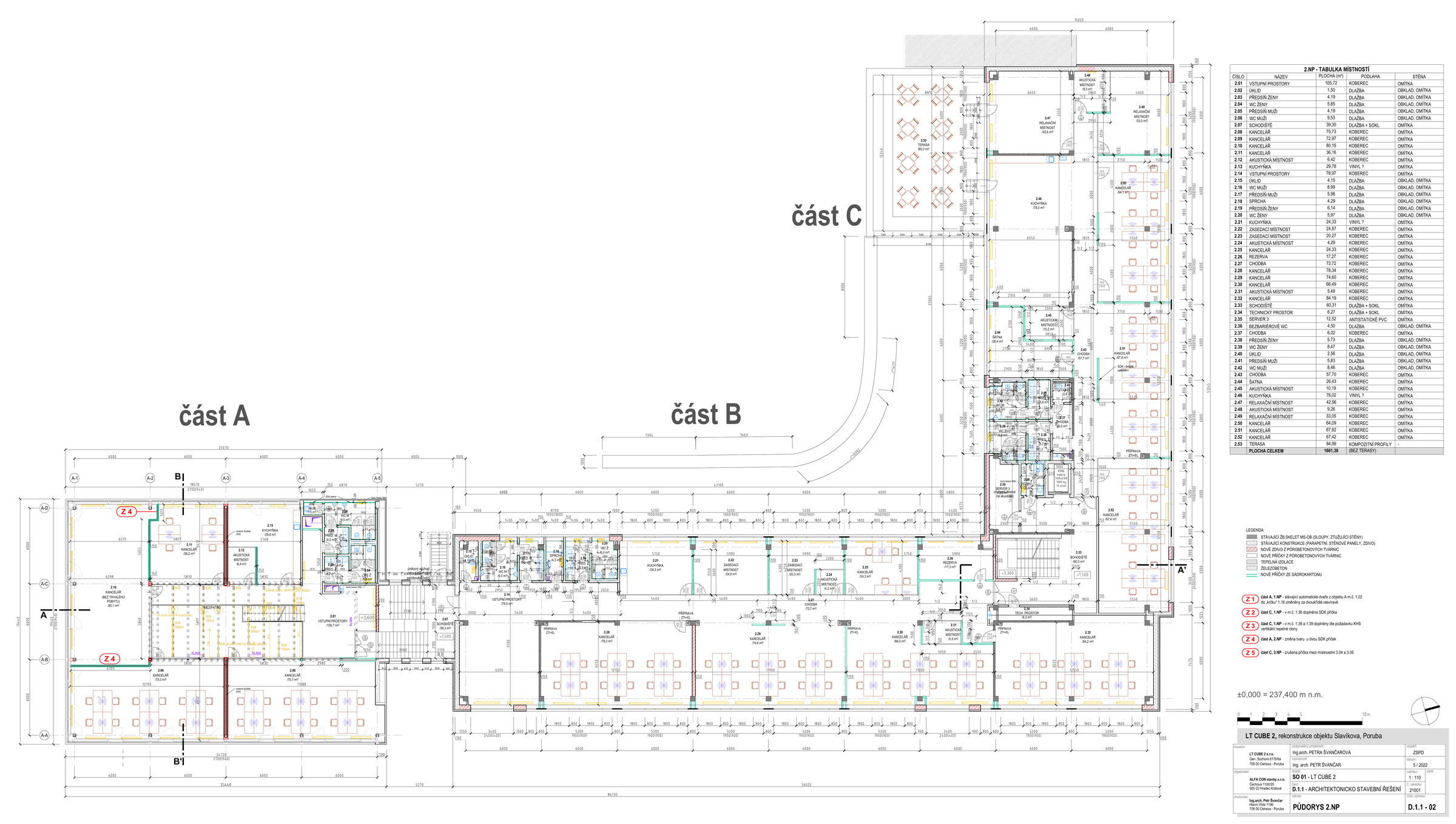
Dispozice
Volné kancelářské prostory ve 2. NP objektů A, B a C. Kliknutím zobrazíte v plném rozlišení.
Výkres: 2. NP — LT CUBE 2, Ostrava-Poruba · srpen 2023
Virtuální prohlídka
Drónový průlet celým areálem LT CUBE 2 — všechny tři objekty z perspektivy, která vás zaujme.
Lokalita
Etablovaná městská část s výbornou dopravní dostupností a infrastrukturou pro firemní provoz.
Kontakt
Rádi vám zodpovíme všechny dotazy a domluvíme nezávaznou prohlídku komplexu.